KHÁM PHÁ "SMALL HOUSE" NƠI TRÀN ĐẦY SỰ ẤM CÚM VÀ THƯ THÁI

Từ một gia đình trẻ trong nhịp sống hiện đại, sau những giờ làm việc căng thẳng tại công sở, họ mong muốn tổ ấm của mình là một nơi tràn đầy sự ấm cúng và thư thái. Nơi bạn có thể nhìn thấy cây xanh, ánh nắng, đám mây và cảm nhận làn gió mát mỗi ngày. Họ muốn tận dụng thời gian rảnh buổi tối để gặp gỡ trò chuyện với con, chơi với con, cùng học với con. Vì vậy, khi lựa chọn giải pháp bố trí không gian, tính kết nối là ưu tiên hàng đầu của một kiến ​​trúc sư.

270835-1.jpgSmall house với cảm nhận của ánh nắng, cây xanh

270840-2.jpgVật liệu sử dụng gần gũi, hiện đại

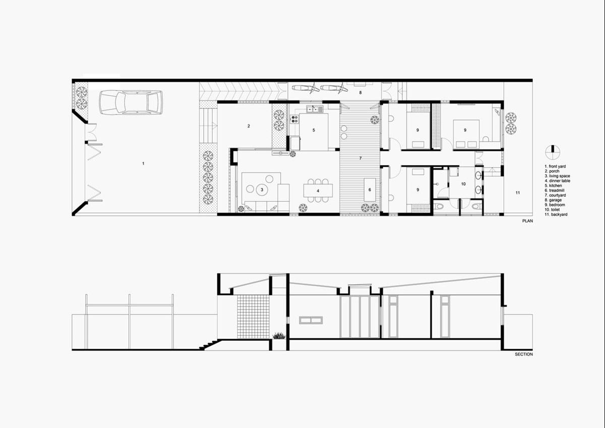
270840-17.jpgMặt bằng-mặt cắt kiến trúc

Dự án cách trung tâm thành phố Bến Tre khoảng 10km, đây là dự án có diện tích rộng và mặt tiền hướng Tây. Với tiêu chí thiết kế trên, kiến ​​trúc sư đã lựa chọn phương án nhà 1 tầng, ngăn cách khu vực sinh hoạt và nghỉ ngơi bằng khoảng sân giữa nhà. Khoảng sân này là không gian gắn kết các thành viên trong gia đình, có công năng linh hoạt, góc làm việc, tập thể dục, khu vui chơi cho trẻ nhỏ. Cây xanh vào các không gian cũng giúp không khí trong lành và nhiệt độ mát mẻ hơn.

270842-3.jpgKhoảng giếng trời đưa ánh sáng tự nhiên vào trong

270842-5.jpgÁnh sáng len lỏi vào không gian bên trong

270843-6.jpgNội thất sang trọng, tinh tế

Cửa chính hướng Bắc, tiếp cận bằng sảnh lớn tránh ánh nắng trực tiếp, sảnh này cũng là không gian thư giãn của các thành viên trong gia đình vào mỗi buổi tối. Hệ thống thông gió tự nhiên được bố trí xuyên suốt tòa nhà với giải pháp tường hai lớp: lớp gạch thông gió và lớp cửa kính lùa. Giải pháp này tránh khắc nghiệt. Chúng giúp thông gió tốt và mang lại sự riêng tư cần thiết cho cuộc sống gia đình.

270844-10.jpgTính kết nối được thể hiện rõ qua các ô cửa kính, tường hoa gió

270846-16.jpgMỗi góc nhìn của công trình lại cho người xem một cảm nhận riêng

Công trình sử dụng gạch thông gió đất nung, màu gỗ trầm trên nền sơn trắng kết hợp mảng xanh tạo nên nét hiện đại pha chút mộc mạc hòa mình vào thiên nhiên. Những chất lạnh này mang lại cảm giác ấm áp và thư thái cho gia đình. Khi lựa chọn giải pháp thiết kế, kiến ​​trúc sư mong muốn dù sống ở không gian nào thì các thành viên trong gia đình cũng có thể nhìn thấy nhau và trò chuyện cùng nhau, giúp không khí gia đình trở nên ấm cúng hơn. 

270848-13.jpgÁnh nắng vào thời điểm xế chiều

Tại Gonic - Chúng tôi là đơn vị chuyên tư vấn thiết kế thi công nội ngoại thất. Chúng tôi cung cấp một dịch vụ toàn diện về tư vấn thiết kế và xây dựng từ lập dự án, thiết kế kiến trúc đến thi công và hoàn thiện nội thất công trình. 

Mọi thắc mắc về Sản Phẩm xin vui lòng liên hệ:

  • Số 74 đường Phạm Tứ, phường Khuê Trung, quận Cẩm Lệ, thành phố Đà Nẵng
  • Số điện thoại: 0366688289
  • Gmail: [email protected]